מפרט ותוכניות מכר
חברתנו מבצעת כתיבת מפרט מכר ותכניות ייצוגיות בהתאם לחוק צו מכר דירות תיקון התשס”ח – 2008, ותיקון התשע”ה – 2015 בעניין חיובים וזיכויים.
ניתן להזמין מפרטים ייחודיים למסחר, קבוצות רכישה וכדומה.
על הפרוייקטים
באדריכלות לאדריכלים ביצענו עד כה, מאות פרוייקטים של תוכניות מכר, לפרויקטים בסדר גודל ענק, עבור החברות הגדלות בשוק, לבניינים עם מאות דירות, אתם מוזמנים לגלול לסוף העמוד לקרוא את המאמר שלנו על תכניות מכר.
חברתנו מהותיקות בתחום, עם דגש על מקצועיות ועמידה בלו”ז צפוף גם בפרוייקטים גדולים.
מפרט מכר – סט תכניות מכר – לפי חוק מכר
שירותיה של חברת אדריכלות לאדריכלים כוללת בין היתר גם את הפקתן של תכניות מכר לפי חוק מכר, תכניות אלו נקראות בהגהה המקצועית, תכניות מפרט המכר.
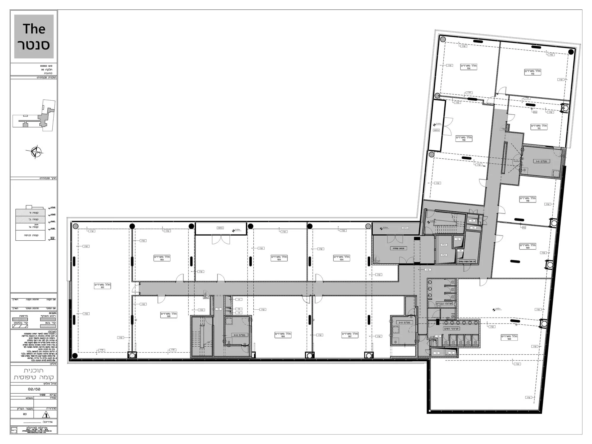
תוכניות למפרט מכר מציגות ללקוח הרוכש את הדירה מה הם השטחים השייכים לו, ומה השטחים השייכים לכלל הדיירים.
תוכניות מכר המבוצעות באדריכלות לאדריכלים, הינם איכותיות ומקצועיות, ומחלקות את השטחים לפי הדרישות בחוק.
חברתנו שמה לה לדגש את שביעות רצונם של לקוחותיה ועל כן עושה את כל הנדרש על מנת לספק בעבור כל לקוח ולקוח את העבודה האיכותית והמדויקת מכל. אנו מעניקים את שירותינו בעבור מגוון רחב של לקוחות, לרבות אדריכלים, יזמים, ואף לקוחות פרטיים אשר זקוקים לשירותיו המקצועיים של הצוות שלנו.
תכניות מכר – מבררות את שטחי הנדל”ן
יצירתה של תכניות מכר בתחום האדריכלות הינה חשובה ומשמעותית ותעניק הן ללקוח והן ליזם שקט לטווח ארוך, מפרט מכר משמש גם כחלק מחוזה הדירה, וחשוב שיוכן על ידי בעלי מקצוע עם ותק וניסיון בתחום, לאדריכלות לאדריכלים מעל עשור של ניסיון בתחום השרטוט והפקת תוכניות מכר, סט התוכניות למפרט המכר כולל סט של 7 תוכניות בממוצע, החלוקה בתוכניות צריכה להיות מדויקת מאד, כי בסוף הלקוח משלם לפי המטר אותו הוא מקבל בתכניות מכר לפי חוק מכר.
מעבר לכך, התוכניות מכר, מאפשרות להבין בצורה ברורה יותר את התוצאה הסופית שעתידה להתקבל, הן עוזרות לדעת האם התכנון עצמו תקין ובמידת הצורך מאפשרות לאתר את המקומות בהן ישנו צורך בשיפור של התכנון.
תוכניות מכר לפי דרישת החוק
-
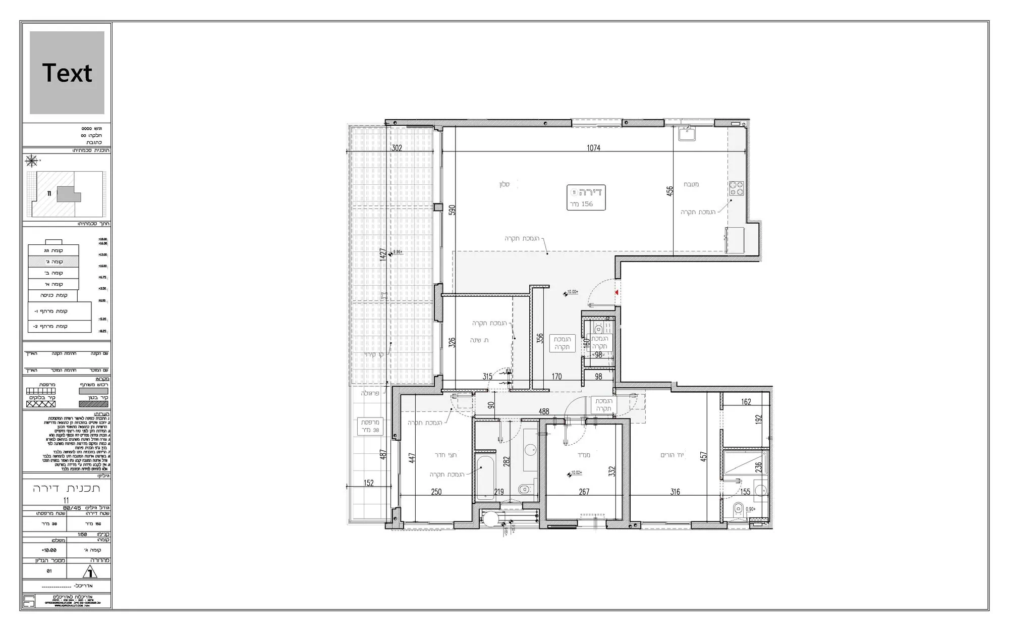
- תכנית הדירה לכל דירה בקנה מידה לא קטן מ– 1:50 הכוללת מידות של כל חדר ומידות כלליות של הדירה.
-
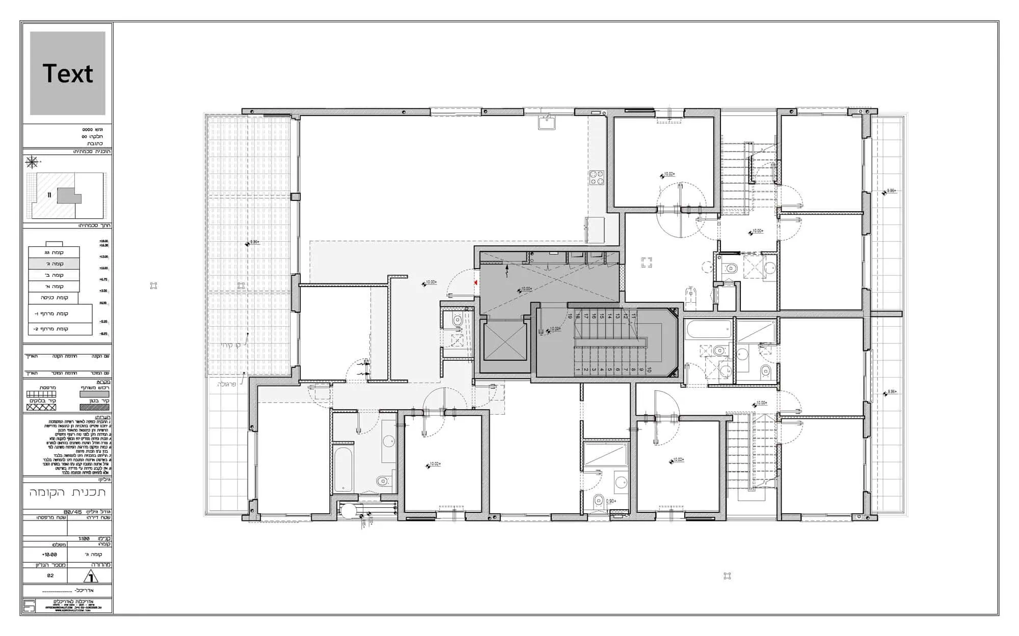
- תכנית הקומה בה נמצאת הדירה בקנה מידה לא קטן מ–1:100 הכוללת סימון הרכוש המשותף בקומה
-
- תכנית קומה טיפוסית בקנה מידה לא קטן מ– 1:100הכוללת סימון הרכוש המשותף בקומה.
-
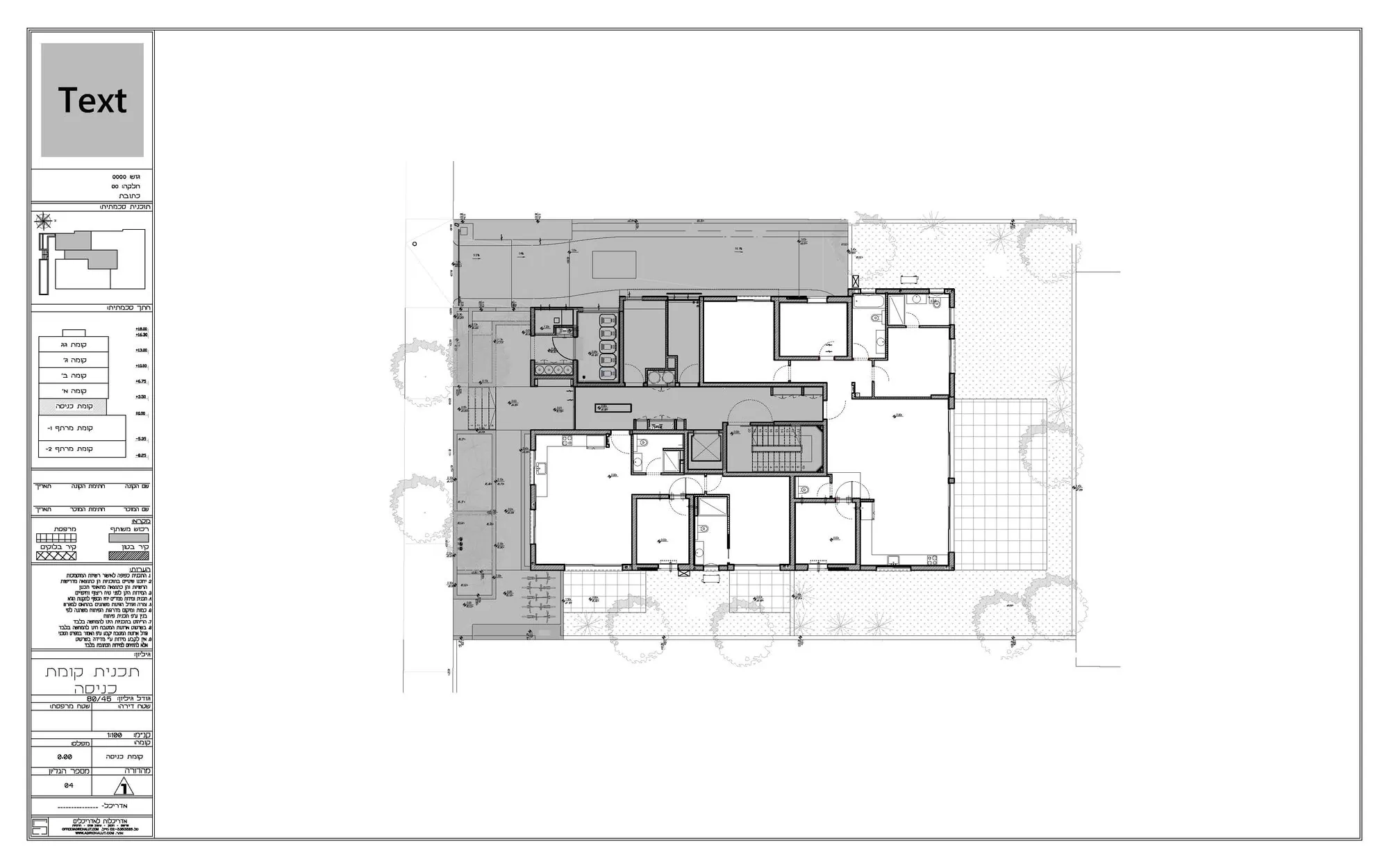
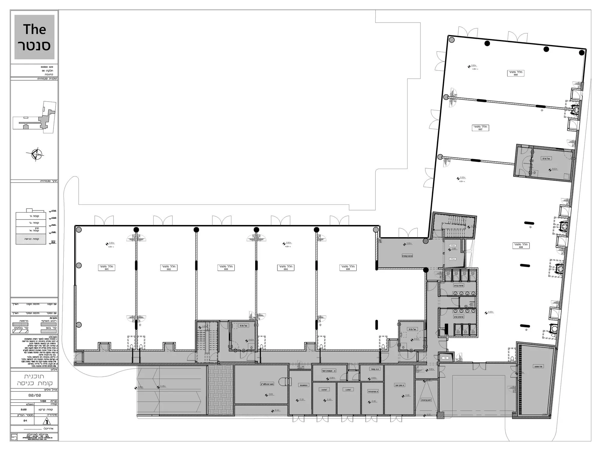
- תכניות קומת כניסה/קומות מפולשות; קומות מרתף בקנה מידה לא קטן מ–1:100 הכוללת סימון הרכוש המשותף ושטחים דירתים מוצמדים; תכניות אלו ניתן לצרף בצילום מוקטן לקנה מידה .1:200המוכר רשאי להכניס שינויים בחלוקה פנימית של דירות אחרות בבניין בתנאי שלא ישנו את חזית הבית או שטחים ברכוש המשותף.
-
- תכנית קומת גג בקנה מידה לא קטן מ.–1:100
-
- תכנית המגרש כפי שהוגשה לרשות המקומית לקבלת היתר בניה בקנה מידה 1:250 הכוללת סימון גינה משותפת וגינות צמודות
בנוסף: תוכנית חניה מוצמדת, תוכנית מחסן.
חשוב לדעת כי על מכין התוכנית לדעת היטב מה השטחים השייכים לדירה, שכן כל מטר בשווי הדירה זה עלות של עשרות אלפי שקלים, ישנם שטחים רבים שיכולים להעלם במידה ומכין התוכנית לא בקי בחוק מכר.
צירפנו לכם כמה מהלבטים האלו, שבגללם חשוב שחברת ‘אדריכלות לאדריכלים’ שהינה מקצועית וותיקה בתחום עם ניסיון של מאות דירות, תכין לכם את התכניות.
-
- על מכין התוכנית לקחת בחשבון את סוג החיפוי של הבניין ולדעת כמה מתוכו נכלל בשטח הדירה.
-
- על מכין התוכנית לדעת כמה שטח מהקירות המשותפים שייכים לדירה.
-
- איך מחשבים מרפסות, והאם הקירות שלהן והמעקות נחשבים כחלק משטח הדירה.
-
- למי מסמנים את המרתף, לדייר או לכל השכנים, ומה קורה עם שטח משותף במקלט.
-
- מדרגות בתוך הבית איזה שטח סופרים? בקומת הלובי או למעלה.
-
- מה עם שטחים נמוכים מתחת מדרגות.
-
- האם צריך לסמן מטבח וכלים סניטרים?
-
- באיזה צבעים מסמנים כל דבר ואיזה דבר לא מסמנים כלל.
כמו שראינו חשוב שחברה מקצועית וותיקה בתחום תכין עבורכם את התכניות מכר, פנו אל ‘אדריכלות לאדריכלים’ עוד היום.
תוכניות מכר מחירים
(המחירים הינם להפקת סט של כ7 תוכניות אדריכליות בממוצע לדירה, תוספת להכנת חוזה המכר לפי חוק מכר הכולל בתוכו את המפרט הטכני של הדירה הינו 400 ש”ח לדירה פלוס מע”מ במינימום 10 דירות)
| תיאור השירות | מחיר (בכפוף לעמוד מחירון שבאתר) |
|---|---|
| מחיר לדירה במינימום 10 דירות | 400 ש”ח |
| מחיר לדירה במינימום 20 דירות | 350 ש”ח |
| תוספת צבע לסימון רכוש הלקוח (לכל דירה) | 50 ש”ח |
| תכנית מכר למסחר בקניון – עד 15 יחידות מסחר | 5,250 ש”ח |
| תכנית מכר למסחר בקניון – מעל 15 יחידות (תוספת לכל יחידת מסחר) | 350 ש”ח |
תוכניות מכר – מדוע הן חשובות ומה הן כוללות?
תוכניות מכר הן חלק בלתי נפרד מעסקאות נדל”ן, במיוחד בפרויקטים חדשים. מטרתן העיקרית היא להבהיר לרוכש הדירה את פרטי הנכס, חלוקת השטחים והגדרות הרכוש המשותף בהתאם לחוק מכר. תוכניות אלו מאפשרות לכל הצדדים המעורבים – הקבלן, היזם והרוכשים – להבין במדויק מהן הזכויות והחובות הנובעות מהחוזה.
מהו חוק מכר ומה החשיבות שלו בתכנון תוכניות מכר?
חוק מכר (דירות) התשל”ג-1973 נחקק במטרה להגן על רוכשי דירות מקבלנים ולמנוע הפתעות בלתי צפויות. החוק קובע אילו פרטים חייבים להופיע בתוכניות מכר דירות, ומגדיר באופן ברור את התחייבויות המוכר כלפי הרוכש. תיקוני החוק שנעשו לאורך השנים, כמו תיקון התשס”ח-2008 והתשע”ה-2015, הבהירו את נושא תוכניות חוק מכר, לרבות אופן חישוב שטחי הדירה, חיובים וזיכויים, והתאמה מדויקת בין ההתחייבויות לבין התוצאה בשטח.
סוגי תכניות מכר ומה הן כוללות
- תכנית מכר דירה – מתארת את חלוקת השטח בתוך הדירה, כולל מידות החדרים והשטחים הפרטיים.
- תכנית מכר לדוגמא – מסמך המשמש להדגמה כללית של פרויקטים דומים.
- תוכניות מכירה – מלוות בדרך כלל את תהליך השיווק של דירות בפרויקטים חדשים.
כל הזכויות שמורות למסמך זה לאדריכלות לאדריכלים, אין במידע זה כדי לתת יעוץ משפטי או חוקתי, כל שימוש במידע הינו על אחריות הקורא בלבד, ט.ל.ח. אין להשתמש ללא אישור בכתב וחותמת המשרד.
התהליך המקצועי שלנו בהכנת תוכניות מכר איכותיות
כצוות מקצועי עם מעל עשור של ניסיון, אנחנו באדריכלות לאדריכלים מבינים שהכנת תכניות מכר איכותיות זה הרבה יותר מסתם עמידה בדרישות החוק. כשלקוח פונה אלינו להכנת תוכניות מכירה, אנחנו מתחילים בתהליך מקיף שכולל בדיקה מעמיקה של כל התוכניות האדריכליות המקוריות ותרגומן לתוכניות חוק מכר מושלמות. הצוות המנוסה שלנו בודק קפדנית את כל התוכניות הקיימות, מתוכניות היתר הבניה ועד לפרטים הטכניים הקטנים ביותר.
מה שמייחד אותנו הוא הקפדנות שלנו על כל פרט. אנחנו מזהים את כל השטחים הפרטיים והמשותפים ומבצעים חלוקה מדויקת של השטחים לפי הדרישות בחוק מכר. כל מטר רבוע נבדק ומסווג בקפידה רבה על ידי המומחים שלנו. הניסיון שצברנו בעבודה על מאות דירות לימד אותנו שגם פרטים שנראים קטנים – כמו עובי קירות, סוג חיפוי החזית, או מיקום המתקנים הטכניים – יכולים להשפיע משמעותית על החישוב הסופי של תכנית מכר דירה.
השירות החדשני שלנו: תוכניות מכר צבעוניות
אנחנו גאים להיות מהחלוצים בישראל בתחום תוכניות מכר צבעוניות. החדשנות הזאת שהבאנו לשוק הישראלי מהווה מהפכה אמיתית באופן שבו לקוחות מבינים את התוכניות שלהם. במקום התוכניות השחור-לבן המסורתיות שהיו מבלבלות ורבות קשות להבנה, תוכניות מכר צבעוניות שאנחנו מפיקים מאפשרות הבחנה ויזואלית מיידית בין סוגי השטחים השונים.
המתודולוגיה שפיתחנו משתמשת בקוד צבעים אחיד ומקצועי: שטחים פרטיים בצבע אחד, שטחים משותפים בצבע שני, ואזורי שירות בצבע שלישי. הלקוחות שלנו מעידים שתוכניות מכר צבעוניות שהכנו עבורם הקלו משמעותית על הרוכשים להבין את חלוקת השטחים ואת מה שהם בעצם קונים. זה לא רק נותן יתרון תחרותי ליזמים שעובדים איתנו, אלא גם חוסך לא מעט בעיות ומחלוקות בהמשך.
המומחיות הכלכלית שלנו בתכנון תוכניות חוק מכר
עם הניסיון הרב שצברנו בעבודה עם יזמים וקבלנים, אנחנו יודעים שכל מטר רבוע בתכניות מכירה שאנחנו מכינים יכול להיות שווה אלפי שקלים. לכן, בצוות שלנו יש מומחים שמתמחים בזיהוי הזדמנויות חוקיות למיטוב חלוקת השטחים. אנחנו יודעים בדיוק איך לטפל בהגדרה נכונה של מרפסות, איך לנצל באופן מושכל מדרגות פנימיות, ואיך למקסם את הפוטנציאל של אזורי גג.
הניסיון שלנו מלמד שהגישה המקצועית שלנו לתכנית מכר לדוגמא יכולה לחסוך או להביא ללקוחות שלנו עשרות אלפי שקלים. מצד שני, אנחנו גם מבינים את החשיבות של דיוק מוחלט. אם מתגלה שהשטח בפועל לא תואם את שצוין בתוכניות המכר שהכנו, זה יכול להיות יקר מאוד ליזם. זה בדיוק הסיבה שאנחנו מקפידים על תהליכי בקרת איכות המקפידים ביותר בשוק.
החדשנות הטכנולוגית שלנו בהכנת תוכניות מכר דירות
אנחנו באדריכלות לאדריכלים מאמינים בעבודה עם הטכנולוגיות המתקדמות ביותר. המשרד שלנו מצויד בתוכנות CAD מתקדמות שמאפשרות דיוק של מילימטרים בחישוב השטחים שבתוכניות חוק מכר שאנחנו מכינים.
איך אנחנו מתמודדים עם אתגרים מיוחדים בפרויקטים שונים
הניסיון הרב שצברנו בעבודה על פרויקטים מכל הסוגים לימד אותנו שכל סוג פרויקט דורש גישה מותאמת. בפרויקטי יוקרה שאנחנו מטפלים בהם, השטחים הפרטיים גדולים ומורכבים יותר, עם מרפסות בגדלים שונים, גינות פרטיות, ולעיתים אף בריכות פרטיות. הצוות שלנו פיתח מומחיות מיוחדת בחישוב המדויק של שטחי השירות והנוחות בפרויקטים מסוג זה.
בקצה השני, כשאנחנו עובדים על פרויקטי מחיר למשתכן או פינוי-בינוי, אנחנו מבינים שכל מטר הוא קריטי. במקרים אלה החלוקה שלנו חייבת להיות יעילה ומדויקת למקסימום. גם כשיש מגבלות תקציביות, אנחנו לא מתפשרים על רמת הפירוט והאיכות של תכנית מכר דירה שאנחנו מכינים. המחויבות שלנו היא לספק למשפחות הרוכשות את הביטחון והאיכות שמגיעים להן.
המומחיות שלנו בזיהוי ומניעת טעויות נפוצות
הנסיון הרב שצברנו בשטח לימד אותנו לזהות ולמנוע טעויות נפוצות שעלולות להיות יקרות מאוד. אחת הטעויות השכיחות שאנחנו רואים אצל גורמים לא מקצועיים היא חישוב שגוי של שטחי מרפסות. הצוות שלנו יודע בדיוק שרק חלק מהמרפסת נחשב כשטח דירתי, ושיש הבדל בחישוב בין מרפסות מקורות לגלויות.
מה שמייחד אותנו הוא שאנחנו לא מתעלמים משטחים נמוכים מתחת למדרגות או באזורי הגלריה – שטחים שרבים לא יודעים איך לטפל בהם. הידע והניסיון שצברנו מלמדים אותנו בדיוק מתי השטחים האלה נכללים בחישוב ומתי לא.
עוד תחום שאנחנו מומחים בו הוא הטיפול הנכון בשטחים משותפים. אנחנו יודעים את ההבדל המשמעותי בין חניה “רגילה” לחניה “מוצמדת”, ובין מחסן שהוא חלק מהדירה למחסן ברכוש המשותף. האבחנות האלה הן לא רק פרטים טכניים – הן משפיעות על שווי הדירה ועל החובות של הרוכש כלפי הוועד הבית.
איך אנחנו מטפלים באי-התאמות ושינויים
למרות כל המאמצים שלנו, לעיתים מתגלות אי-התאמות בין תוכניות חוק מכר שהכנו לבין המציאות בשטח. זה יכול לקרות בגלל שינויים שביצע הקבלן במהלך הבנייה, או בגלל פרשנויות שונות של הדרישות החוקיות. כשזה קורה, הצוות שלנו יודע לטפל במצב במהירות ובמקצועיות שלא תמצאו במקום אחר.
התהליך שלנו כולל בדיקה מחודשת של כל השטחים על ידי המומחים שלנו, התייעצות עם היועצים המשפטיים שעובדים איתנו, והכנת תוכניות מעודכנות ברמה הגבוהה ביותר. הניסיון שצברנו במאות פרויקטים לימד אותנו להתמודד עם מצבים אלה ולמזער את הנזק הכלכלי והמשפטי ללקוחות שלנו.
ההכשרה והעדכון המתמיד של הצוות שלנו
אנחנו באדריכלות לאדריכלים מבינים שתחום תוכניות מכירה הוא דינמי ומתעדכן. חוק מכר עובר תיקונים מעת לעת, נוספות הבהרות חדשות ופסיקות בית משפט שמשנות את הפרשנות של דרישות מסוימות. לכן, אנו פועלים במגוון אופנים כדי להישאר מעודכנים ולהעניק ללקוחות שלנו את השירות הטוב והמדויק ביותר.
בנוסף לעדכונים החוקיים, אנחנו גם משקיעים בהתעדכנות טכנולוגית מתמדת. ההשקעה שלנו בהכשרת הצוות ובכלים החדשים ביותר מבטיחה שהלקוחות שלנו מקבלים תמיד את השירות הטוב ביותר בשוק.
למה כדאי לבחור בנו לתוכניות מכר שלכם
הבחירה שלנו כגורם המכין את תוכניות מכר דירות עבורכם משפיעה על הצלחת הפרויקט כולו. אנחנו לא הזולים בשוק, אבל המחיר שלנו משקף את האיכות הגבוהה, הניסיון הרב, והיכולת שלנו להתמודד עם מצבים מורכבים שגורמים אחרים לא יודעים לטפל בהם.
המומחיות שלנו בתחום תוכניות חוק מכר, הניסיון המוכח שצברנו במאות פרויקטים, והשירות המקיף שאנחנו מציעים – כולל ליווי ותמיכה לאחר הכנת התוכניות – הופכים אותנו לבחירה הטבעית עבור יזמים, קבלנים ואדריכלים המחפשים את הטוב ביותר.
תכנית מכר לדוגמא איכותית שאנחנו מכינים היא לא רק מסמך חוקי, אלא גם כלי שיווקי חשוב שמשפיע על מהירות המכירות ועל שביעות הרצון של הרוכשים. ההשקעה בתוכניות איכותיות ומקצועיות שלנו מחזירה את עצמה במהירות ובהצלחה של הפרויקט.
כששאלים אותנו על הניסיון הספציפי שלנו, אנחנו גאים לספר על מאות הפרויקטים שטיפלנו בהם בכל סוג – מדירות יוקרה ועד מחיר למשתכן. איך אנחנו מתמודדים עם שינויים ותיקונים? יש לנו פרוטוקולים ברורים ומנוסים שמבטיחים טיפול מהיר ויעיל.
מה כלול בשירות שלנו? לא רק הכנת התוכניות, אלא ליווי מלא, הסברים מפורטים, ותמיכה לאורך כל התהליך.
אדריכלות לאדריכלים – שירות ואיכות בכל שלב
יצירתה של תכנית מכר או בשמה המקצועי, מפרט מכר לפי חוק מכר, תעניק לכם את האפשרות לבחון את הבית החדש שלכם, את גודל החדרים, את המרחבים המשותפים עם השכנים, לדעת מה גודל המחסן והאם מוצמדת חניה לדירה, או את אזור הקניות עליו אתם עובדים עוד לפני שהוא מוקם בשטח. את התכניות מכר האיכותיות ביותר ניתן יהיה ליצור הודות לכישוריה של חברת אדריכלות לאדריכלים. חברתנו בעלת ניסיון רב בליווי תהליך עבודה מלא החל מיישומם של צרכי הלקוח בשרטוטים ועד להצגת התוצאה הסופית בתוכנית מכר ממוחשבת איכותית ומרשימה. צרו קשר עוד היום והצוות המקצועי שלנו ישמח לעמוד לשירותכם ולהעניק לכם את המקסימום האפשרי
שאלות ותשובות נפוצות על תוכניות מכר דירות
מה כוללת תכנית מכר דירה?
תכנית מכר דירה כוללת פירוט מלא של מבנה הדירה, כולל מידות חדרים, חלוקה פנימית, הצמדות (כמו מחסן או חניה) והתייחסות לשטחים המשותפים.
מה ההבדל בין תוכניות מכר לתוכניות אדריכליות?
תוכניות מכר מתמקדות בהיבטים החוקיים והשיווקיים של הנכס, בעוד שתוכניות אדריכליות מפרטות את אופן הבנייה עצמו, חומרי הגמר והתכנון ההנדסי.
למה חשוב לוודא שהתוכנית עומדת בחוק מכר ?
עמידה בדרישות החוק מבטיחה שהרוכש יקבל בדיוק את מה שהובטח לו, ושהחוזה יכלול את כל ההתחייבויות של היזם או הקבלן.
בחירת תוכניות מכר דירות שמתאימות לדרישות החוק היא שלב קריטי בכל עסקת נדל”ן. תוכניות אלה מאפשרות לכל הצדדים להבין את פרטי העסקה, למנוע מחלוקות עתידיות ולוודא שהתכנון אכן תואם את הציפיות. אם אתם מחפשים תוכנית מכר לדוגמא או צריכים סיוע בהכנת תוכניות חוק מכר, מומלץ לפנות אלינו לקבלת שירות מקצועי ומדויק.














