רישוי זמין או בלשון העם רישוי מקוון, לכלל הרשויות בארץ בדיוק ובמקצועיות, באדריכלות לאדריכלים הלקוח מקבל את התוכניות מוכנות להעלאה לרובוט, כולל אישור מהרובוט שהתוכניות מוכנות להעלאה.
רישוי מקוון
שרטוט תוכניות והתאמתם לרישוי מקוון.
רישוי זמין – מקוון, ירושלים, תל אביב, וכל הארץ.
רישוי מקוון ירושלים
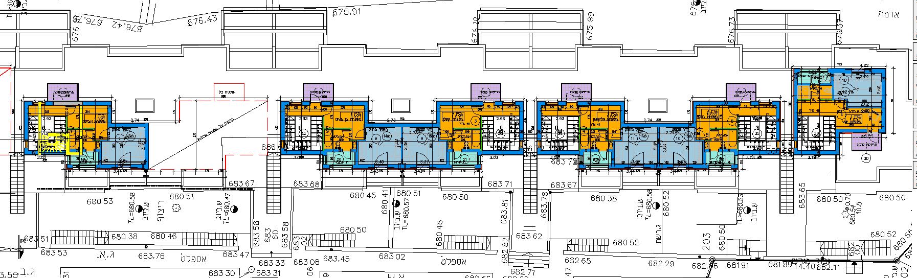
בתמונות לפניכם מוצג תמונות של פרויקט מגורים בבניה רוויה בעיר ירושלים, לאחר תשובת הרובוט כי התכנית תקינה.רישוי מקוון
אחד מתחומי העיסוק של חברת אדריכלות לאדריכלים כולל “התאמת גרמושקות לרישוי מקוון והכנת חישוב שטחים למערכת רישוי זמין” עבור אדריכלים. חברתנו שמה לה לדגש את שביעות רצונם של לקוחותיה ועל כן מקפידה על הענקת השירות המקצועי והמדויק ביותר בכל פרויקט. חברתנו עם ניסיון של מעל עשור ובעלת יכולת עבודה בהיקפים גדולים במיוחד, של עד 2000 שעות עבודה בחודש, זאת תוך עמידה במצבי לחץ ולוחות זמנים צפופים.
שלבי ההכנה של גרמושקה להיתר בנייה
יצירת קבצים למערכת רישוי זמין ב’אדריכלות לאדריכלים’ נעשית במקצועיות ובדיוק תוך שיתוף פעולה מלא עם הלקוח מתחילת העבודה ועד סיומה.
לצורך הפקת חישוב שטחים רובטי, הלקוח מעביר למשרד את התוכנית הסופית להיתר בניה, במקביל ניתן להעביר למשרד גם את השרטוט של תכניות ההיתר, לאחר קבלת תכניות מוכנות להיתר בניה, המשרד עורך את חישוב השטחים הרובטי, ומעלה את התוכניות לרובוט לפי הרשות המבוקשת, ירושלים, תל אביב, או שאר הרשויות ברחבי הארץ, לאחר אישור מהרובוט כי הקבצים תקנים, הלקוח מקבל קובץ מוכן להעלאה לרובוט, וכן את סיוע המשרד להעלאת הקבצים למערכת.
את השרטוט מבצע הצוות המקצועי שלנו, כולם הנדסאי אדריכלות ומעלה. לצורך ביצוע העבודה בצורה המיטבית, נדרשת מיומנות והכרה בתחום, תוך דיוק וירידה לפרטים, כמו כן אנו מבצעים התאמה לפי דרישת הרשויות לרישוי מקוון, דרישות אלו משתנות בין הרשויות השונות ברחבי הארץ, אנו עובדים עם מערכת רישוי זמין של כלל הרשויות בארץ, כולל ירושלים ותל אביב.
אדריכלות לאדריכלים הבחירה הנכונה
אין ספק כי שירותיה של חברת אדריכלות לאדריכלים תעניק לכם את האפשרות לקבלת תכנית להיתר מדויקת ביותר אשר עונה על כלל שלבי הביצוע של העבודה בפועל. כך שבעזרת עבודה משותפת עם חברתנו, ניתן יהיה ליצור את התכניות האיכותיות ביותר בכל תחום שהוא, זאת לרבות מבני מגורים, מסחר, בתים פרטיים, הקמת מבני ציבור וכיו”ב. כל זאת במחירים המשתלמים ביותר וברמת איכות ללא פשרות, תוך עמידה בלוחות זמנים צפופים. הנכם מוזמנים ליצור קשר עם חברתנו עוד היום ונשמח לעמוד לשירותכם ולספק את העבודה האיכותית והמדויקת ביותר בתחום.
התהליך המלא של רישוי מקוון – כל מה שצריך לדעת
רישוי מקוון הפך לכלי מרכזי בניהול תהליכי בנייה ואישור תוכניות אדריכליות. בעידן הדיגיטלי, הרשויות המקומיות מחייבות העלאת מסמכים בפורמט דיגיטלי והגשתם דרך מערכת רישוי זמין, המאפשרת תהליך מהיר ויעיל יותר. עם זאת, כדי שהתהליך יתבצע ללא עיכובים, יש לוודא שהתוכניות מותאמות לכל דרישות הרשות המקומית, כולל תקני שרטוט מחמירים, מבנה מסמכים תקין והתאמה לחוקי התכנון והבנייה.
רישוי מקוון מחירים
| תיאור השירות | מחיר (בכפוף לתנאים שבעמוד מחירון באתר) |
|---|---|
| רישוי מקוון בכל הארץ לבית פרטי עד 500 מטר (בניין מגורים עד 4 קומות מחיר זהה, מעל 4 קומות תוספת 100 ש”ח לקומה) | 500 ש”ח |
מדוע חשוב להיעזר במומחים לרישוי מקוון?
הגשת בקשות להיתר בנייה היא שלב קריטי בתהליך התכנון והבנייה, וכל טעות קטנה עלולה לגרום לדחיית הבקשה או להארכת הזמנים באופן משמעותי. אדריכלות לאדריכלים מתמחה בהכנת קבצים לרישוי מקוון, תוך התאמתם לדרישות הספציפיות של כל רשות מקומית, בין אם מדובר בתל אביב, ירושלים, חיפה או כל רשות אחרת. החברה מציעה:
✔️ התאמת גרמושקה לפי תקני הרשויות
✔️ הכנת חישובי שטחים מדויקים לרובוט הרישוי
✔️ סיוע בהעלאת הקבצים למערכת רישוי זמין
✔️ ליווי הלקוח עד לקבלת אישור תקינות מהרובוט
תיקונים ושיפורים בהתאם לדרישות הרשויות
במהלך תהליך הרישוי, ייתכן שהרשות תבקש תיקונים בתוכניות או בחישובי השטחים. אנו דואגים לבצע את ההתאמות הנדרשות במהירות האפשרית כדי למנוע עיכובים. כמו כן, אנו מתעדכנים באופן שוטף בדרישות הרגולטוריות המשתנות בין הרשויות המקומיות, מה שמבטיח שהלקוחות שלנו יקבלו שירות מותאם ומדויק.
שאלות ותשובות בנושא רישוי מקוון
❓ מהו רישוי מקוון?
רישוי מקוון הוא תהליך דיגיטלי שבו מוגשות בקשות להיתרי בנייה דרך מערכת ממוחשבת בשם רישוי זמין, אשר מופעלת על ידי הרשויות המקומיות בישראל.
❓ כיצד ניתן להגיש גרמושקה לרישוי זמין?
לשם כך, יש להכין גרמושקה ממוחשבת בפורמט תקני, להעלות אותה למערכת הרישוי, ולוודא שכל חישובי השטחים והפרטים הטכניים עומדים בדרישות הרשות המקומית.
❓ מה ההבדל בין חישוב שטחים ידני לחישוב שטחים רובוטי?
חישוב שטחים ידני מתבצע על ידי המתכנן, בעוד שחישוב רובוטי נעשה באמצעות מערכת ממוחשבת של הרשות, אשר בודקת שהחישובים תואמים להוראות חוק התכנון והבנייה.
❓ מה היתרון בשירות של “אדריכלות לאדריכלים” לרישוי מקוון?
היתרון שלנו הוא דיוק מרבי, ניסיון עשיר, וליווי מקצועי עד לקבלת אישור סופי. אנו מבטיחים שהתהליך יתבצע באופן חלק ומהיר, תוך מניעת תקלות אפשריות שיכולות לגרום לדחייה של הבקשה.
❓ כמה זמן לוקח להוציא היתר בנייה דרך רישוי מקוון?
הזמן משתנה בהתאם לרשות המקומית ולמורכבות הפרויקט. עם זאת, עבודה עם חברה מקצועית יכולה לקצר משמעותית את משך ההמתנה ולאפשר הגשה חלקה יותר.





