בחברתנו משרטטים את כל סוגי הגרמושקות לרשויות, כולל התאמה למערכות רישוי זמין וחישוב שטחים מקוון בכלל הרשויות המקומיות כולל ירושלים ותל אביב
היתרי בנייה ותבעו"ת
גרמושקות לרשויות כולל התאמה לרישוי מקוון
על הפרוייקטים
שרטוט היתרי בנייה – כל מה שצריך לדעת
אחד השירותים החשובים ביותר עבור אדריכלים, יזמים ובעלי נכסים המעוניינים להתחיל תהליך בנייה, הוא שרטוט והגשת היתרי בנייה. חברת “אדריכלות לאדריכלים” מתמחה בשרטוטים מדויקים ומקצועיים, תוך מתן דגש על התאמה מלאה לדרישות הרשויות המקומיות ולצרכי הלקוח. עם מעל עשור של ניסיון, צוות החברה מסוגל להתמודד עם פרויקטים בהיקפים גדולים, לנהל לוחות זמנים צפופים ולספק שירות ברמה הגבוהה ביותר.
מהו שרטוט להיתרי בנייה?
שרטוט היתרי בנייה הוא תהליך טכני ומדויק שמטרתו לתעד את כל פרטי המבנה המתוכנן בצורה ברורה, כך שיוכל לקבל אישור מהרשויות המתאימות. שרטוטים אלו כוללים מגוון פרטים, ביניהם תכניות קומות, חזיתות, חתכים ונספחים ייעודיים כמו תוכנית ממ”ד, גדרות או בריכות.
השרטוט משמש כבסיס לתהליך קבלת היתר בנייה מהרשויות המקומיות.
סוגי שירותי השרטוט שלנו
חברתנו מתמחה במגוון רחב של שירותי שרטוט להיתרי בנייה, ביניהם:
- שרטוט היתרי בנייה לבתים פרטיים:
מתאים לאדריכלים, בעלי נכסים ויזמים פרטיים המעוניינים לבנות או לשדרג בית פרטי. - שרטוט היתרי בנייה לבנייני מגורים:
מיועד לאדריכלים, יזמים וקבלנים המתכננים בנייני מגורים רבי קומות. - שרטוט היתרי בנייה למבנים ציבוריים:
כולל מבנים כמו בתי ספר, משרדים ציבוריים, מוסדות חינוך ותרבות.
שלבי הכנת גרמושקה להיתרי בנייה
חברתנו מתמחה בשרטוט גרמושקה להיתרי בנייה, תהליך שכולל את השלבים הבאים:
- קבלת נתוני התכנון:
הלקוח מעביר סקיצות ראשוניות ותוכניות מדידה מקצועיות. - עיבוד נתונים והשרטוט הראשוני:
השרטוט מתבצע באמצעות תוכנת אוטוקאד, תוך שרטוט של תכניות קומות, חזיתות, וחתכים. - יצירת גיליונות לפי דרישות הפרויקט:
בהתאם לאופי המבנה ולדרישות הרשויות, אנו יוצרים גיליונות ייעודיים כמו נספח אשפה, פרטי מדרגות, תוכנית בריכה, פריסות גדרות ועוד. - התאמה למערכת רישוי זמין:
אנו מבצעים התאמה מלאה למערכת רישוי זמין של הרשויות, כולל תל אביב וירושלים, תוך הבטחת עמידה בכל הדרישות המעודכנות.
היתרי בנייה מחירים
| סוג ההיתר | מחיר (בכפוף לתנאים שבעמוד מחירון באתר) |
|---|---|
| בית פרטי הגשה להיתר | 2950 ₪ |
| דו זהה | 3500 ₪ |
| דו לא זהה | 5000 ₪ |
| בניין מגורים הגשה להיתר קומות זהות | 5500 ₪ |
| בניין מגורים הגשה לתמ”א 38 | 3500 ₪ |
| מחיר לגיליון, כגון: ממ”דים, מדרגות, נספח אשפה | 900 ₪ |
| היתר לתוספות (מעלית, מרפסות וכד’) | 2000 ₪ |
| היתר לבניין ציבורי | לפי היקף |
| תיקון תוכניות לרשויות | לפי שעה |
שרטוטים והגשת היתרי בנייה – למי זה מיועד?
שירותי שרטוט היתרי בנייה מתאימים עבור:
- אדריכלים: אדריכלים בעלי שם, שאת עבודת השרטוט משאירים לחברה מקצועית בתחום.
- יזמים פרטיים וקבלנים: המעוניינים להקים בית פרטי או מבנה מגורים, ומעוניינים לקבל בשלב ראשון את גבולות המבנה לפי תב”ע, טרם הגשת תכניות מפורטות.
- בעלי עסקים: המעוניינים לשדרג או להקים מבני מסחר או תעשייה.
כמה עולה שרטוט גרמושקה להיתרי בנייה?
מחיר שרטוט גרמושקה משתנה בהתאם למורכבות הפרויקט, היקף העבודה והדרישות הייחודיות של כל לקוח. באופן כללי, ניתן לומר שהמחירים נקבעים לפי מספר הגיליונות הנדרשים ומידת הפירוט בתכניות. אנו מזמינים אתכם לפנות אלינו לקבלת הצעת מחיר מותאמת אישית לצרכים שלכם, או להיכנס בעמוד הבית שלנו למחירון כללי.
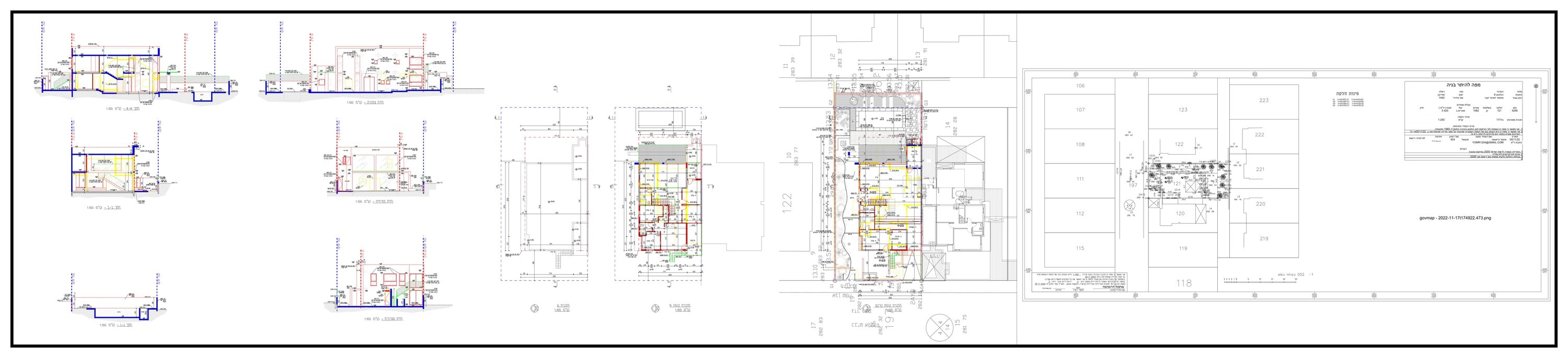
דוגמאות לשירותי שרטוט גרמושקה להיתרי בנייה
בעמוד זה תוכלו למצוא דוגמאות מפורטות למגוון עבודות שרטוט שביצענו בעבר, כולל תכניות קומות, חזיתות ונספחים שונים. אנו ממליצים לעיין בהן כדי להתרשם מרמת הדיוק והמקצועיות שלנו.
היתרונות בשימוש בשירותי החברה שלנו
- מקצועיות וניסיון רב שנים: צוות מנוסה הכולל הנדסאים ואדריכלים מובילים.
- התאמה מלאה לדרישות הרשויות: עבודה עם כל הרשויות בארץ, כולל הדרישות היחודיות של ירושלים ותל אביב..
- עמידה בלוחות זמנים צפופים: יכולת עבודה בהיקפים גדולים במיוחד ונתינת שירותי שרטוט בהיקף של עד 2000 שעות עבודה בחודש.
- תוצאות מדויקות: שרטוטים ברמה הגבוהה ביותר, המבטיחים תהליך חלק ומהיר של קבלת היתר בנייה.
הכנת גרמושקה להיתרי בנייה – תהליך מעמיק
הכנת גרמושקה להיתרי בנייה מהווה את הבסיס לכל פרויקט בנייה מוצלח. התהליך מתחיל בשלב התכנון הראשוני ומסתיים בקבלת האישור הסופי מהרשויות. הכנת גרמושקה מקצועית דורשת הבנה עמוקה של תקנות הבנייה, דרישות הרשויות והיכרות מקצועית עם כל סוגי המבנים.
הוצאת שרטוט היתר בנייה – שלבים מפורטים
הוצאת שרטוט היתר בנייה הינה תהליך טכני מורכב שכולל שש שכבות עיקריות של מידע שכל אחת מהן חיונית להצלחת הבקשה:
שכבת המדידה והמיקום: תהליך זה מתחיל בקבלת תכנית מודד מעודכנת (לא יותר מ-3 שנים), בדיקת התאמה למפות עיריות ודיגיטליות, וזיהוי כל המגבלות הקיימות במגרש. הוצאת שרטוט מדויק דורשת הבנה מעמיקה של הטופוגרפיה, קווי גובה טבעיים ומיקום תשתיות תת-קרקעיות.
שכבת התכנון האדריכלי: כוללת יצירת פתרונות תכנוניים שמתחשבים בכל הגורמים – החל מכיווני רוחות שלטים, נגישות לשמש בחדרי השינה, ועד למיקום מערכות חניה ואיסוף אשפה. הוצאת שרטוט מקצועי מחייבת לא רק ידע טכני אלא גם הבנה עמוקה של תפקוד אנושי בחלל.
שכבת המערכות הטכניות: תיאום בין כל המערכות – חשמל, מים, ביוב, גז, מיזוג אוויר, ותקשורת. כל מערכת צריכה להיות מתוכננת כך שלא תפגע במערכות אחרות ושהתחזוקה שלה תהיה נגישה וקלה.
שכבת הבטיחות והנגישות: הכנת פתרונות שמתחשבים בדרישות כיבוי אש, נגישות לנכים, חרום ופינוי. כל חדר מדרגות, מעלית ודלת חירום מחייבים תכנון מדויק שעומד בתקנות הבטיחות המחמירות של ישראל.
שכבת הסביבה והנוף: התחשבות בהשפעה על הסביבה, כולל ניקוז מי גשמים, השפעה על צמחייה קיימת, ושמירה על פרטיות השכנים.
שכבת האסתטיקה והחומרים: בחירת חומרי חזית המתאימים לאקלים הישראלי ומשתלבים עם הסביבה הבנויה הקיימת, תוך שמירה על זהות אדריכלית ייחודית.
יתרונות נוספים בשירותי שרטוט לקבלת היתר בנייה
שירותי שרטוט לקבלת היתר בנייה המקצועיים שלנו מציעים יתרונות ייחודיים שהולכים הרבה מעבר לשרטוט הבסיסי:
ניתוח כלכלי ומיצוי זכויות: השירות כולל חישוב מדויק של כל הזכויות הכלכליות הטמונות במגרש. לדוגמה, בדיקה אם ניתן לחלק יחידה אחת לשתיים, הוספת יחידת דיור לבן משפחה, או שימוש בזכויות עיקור עצים לטובת הגדלת שטח הבנייה. שרטוט לקבלת היתר בנייה מקצועי יכול להוסיף עשרות אלפי שקלים לערך הנכס.
טכנולוגיה מתקדמת ומדידות לייזר: השימוש בטכנולוגיית סריקה תלת-מימדית מאפשר יצירת מדידות מדויקות עד לסנטימטר, זיהוי בעיות מבניות נסתרות, וחיסכון בזמן הביצוע. השרטוטים מתבססים על נתונים מדויקים ביותר ולא על מדידות ידניות שעלולות לכלול טעויות.
פתרונות לבעיות מורכבות: התמחות בפתרון סוגיות מיוחדות כמו בנייה על קווי מתח גבוה, בנייה באזורי הצפה, בנייה על שיפועים קיצוניים, או התמודדות עם מגבלות ארכיאולוגיות. שרטוט לקבלת היתר בנייה בפרויקטים מורכבים דורש ניסיון מיוחד והכרות עמוקה עם כל הגורמים המעורבים.
שאלות ותשובות
מה כולל תהליך שרטוט היתר בנייה בתים פרטיים?
התהליך כולל קבלת תוכניות מודד וסקיצה ראשונית מהלקוח, שרטוט והטמעת נתונים על תוכנית המודד, והכנת גיליונות רלוונטיים כמו תוכניות קומות, חזיתות, חתכים, ותוכניות נוספות בהתאם לדרישות הרשויות המקומיות ולבקשת הלקוח.
מה ההבדל בין שרטוט להיתרי בנייה לבתים פרטיים לבין מבנים ציבוריים?
בעוד שרטוט לבתים פרטיים מתמקד במידות, עיצוב ופונקציונליות מותאמת אישית, שרטוט למבנים ציבוריים מתמקד ברגולציות מחמירות יותר, כולל דרישות מיוחדות כמו נגישות, בטיחות אש, ותכנון המתאים לשימושים מרובים.
מהם סוגי השרטוטים הכלולים בתהליך?
התהליך כולל שרטוטים כמו תוכניות קומות, חזיתות, חתכים, תוכניות מדרגות, נספחי אשפה, תוכניות בריכה, גיליונות ממ”ד, ועוד. כל אלו נדרשים בהתאם לדרישות הרשות המקומית ולפי אופי המבנה.
כמה זמן לוקח להכין שרטוט היתר בנייה?
משך הזמן משתנה בהתאם להיקף ומורכבות הפרויקט. בדרך כלל, אנו מקפידים לסיים את העבודה תוך עמידה בלוחות הזמנים שסוכמו מראש עם הלקוח, גם בפרויקטים הדורשים עבודה תחת לחץ.
האם אתם עובדים מול כל הרשויות בארץ?
כן, אנו מתאימים את השרטוטים שלנו לדרישות הרשויות המקומיות בכל רחבי הארץ, כולל רשויות המחמירות ביותר כמו תל אביב וירושלים, תוך שימוש במערכת “רישוי זמין”.
חברת “אדריכלות לאדריכלים” מתמחה במתן שירותי שרטוט והפקת גרמושקה להיתרי בנייה. אנו מזמינים אתכם ליצור עמנו קשר עוד היום כדי לקבל שירות מקצועי, מדויק ומהיר, המותאם לצרכים שלכם.




